Nhà lều
Việt Nam, Nha Trang
Hoàn thành
2024
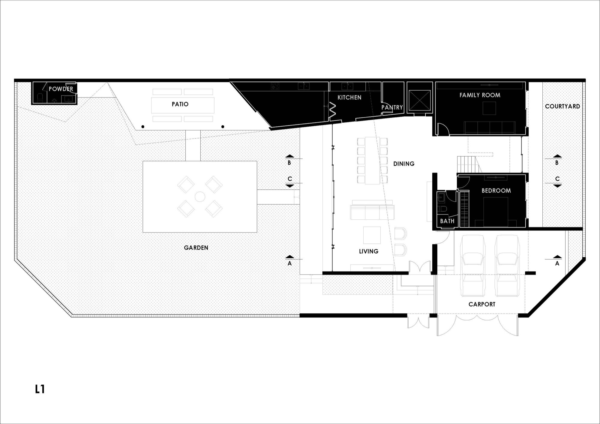
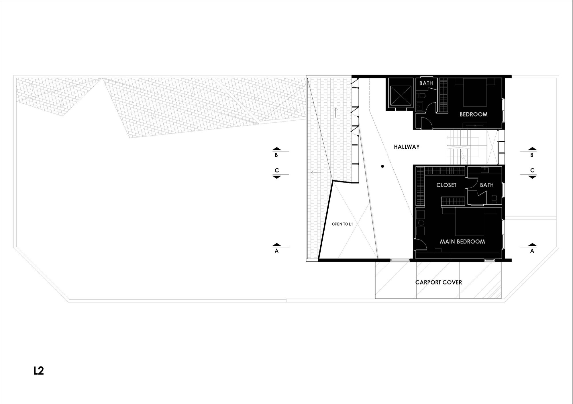
Giữa đô thị, công trình này hiện lên như một “chiếc lều” lớn, bao trùm khu vườn và các không gian sinh hoạt trong một thể thống nhất.

Cấu trúc được định hình bởi hệ mái căng giữa hai bức tường chính, gợi hình ảnh một tấm vải phủ lên khung cứng. Nhờ đó, không gian gần như không cột, nhẹ và liền mạch, mở ra khả năng kết nối tự nhiên giữa con người và thiên nhiên.

Từ các phòng riêng, mỗi bước chuyển đều dẫn vào không gian chung, nơi ánh sáng và không khí len qua các khe mái, lan sâu vào bên trong. Hướng nhà và hình thức mái được tính toán để đón gió và giữ nắng, tạo nên một trạng thái không gian thoáng đãng, luôn biến đổi theo thời điểm trong ngày.

Bình luận

(0)
Loading...
Danh mục
Loại dự án
Dự án khác tại
Hình ảnh