Shabu Shabu
Việt Nam, Hà Nội
Hoàn thành
2025
Trong bối cảnh Hà Nội năng động, nơi các mô hình ẩm thực liên tục tìm cách tạo dấu ấn, Shabu Shabu lựa chọn một hướng tiếp cận chừng mực, tập trung vào việc gợi mở trải nghiệm thông qua những liên tưởng tinh tế đến văn hóa lẩu Nhật.

Sự đan xen của lớp nan, ánh sáng và bề mặt khơi gợi hình ảnh chuyển động nhẹ nhàng, lan toả và liên tục của làn hơi bốc lên từ nồi lẩu. Các yếu tố của kiến trúc Nhật truyền thống như nan gỗ và hình tròn được chắt lọc và tái hiện trong một ngôn ngữ đương đại, tạo nên một cấu trúc không gian vừa rõ ràng vừa có độ mềm cần thiết.

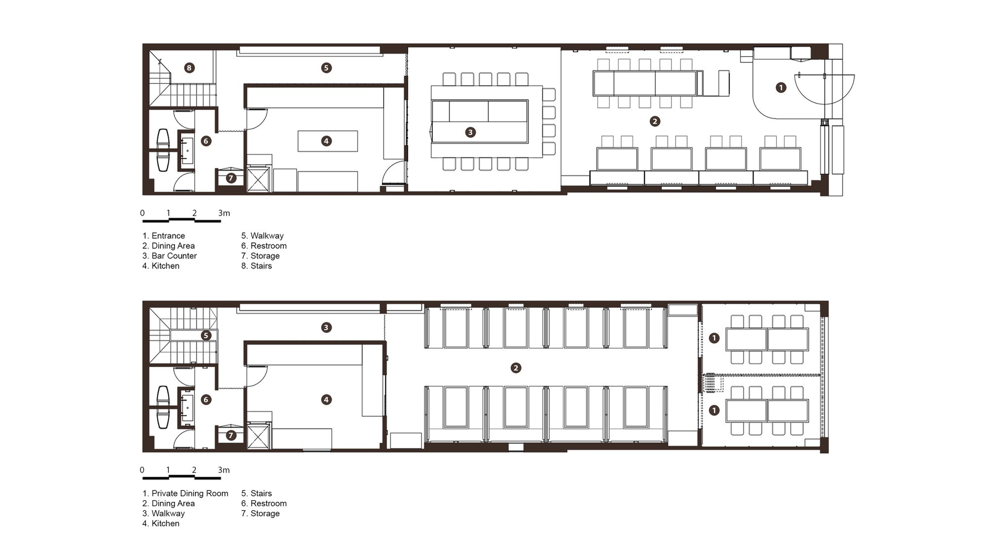
Cách tổ chức mặt bằng hướng đến sự tương tác, với các cụm ngồi đa dạng được đan xen, cho phép khoảng cách linh hoạt giữa riêng tư và cộng đồng. Trong cấu trúc đó, vật liệu tấm sợi thủy tinh kết hợp mica xuất hiện như một lớp xuyên sáng mới, vừa gợi nhớ, vừa tạo hiệu ứng thị giác khác biệt.

Bình luận

(0)
Loading...
Loại dự án
Dự án khác tại
Hình ảnh