Nhà trên đồi thông
Việt Nam, Sóc Sơn
Hoàn thành
2018

Ẩn dưới tán thông, công trình của Idee Architects được tổ chức như một cấu trúc nhẹ, mở, khai thác trực tiếp địa thế cao và tầm nhìn xuống thung lũng. Ngôi nhà không can thiệp vào địa hình mà giữ nguyên cấu trúc sườn dốc, coi địa hình như một phần của hệ tổ chức không gian.

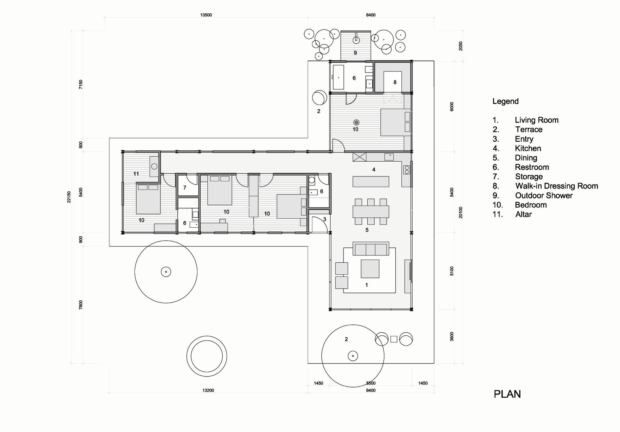
Khu đất được phân tách theo hai cao độ. Phần thấp bố trí gara và các không gian phụ trợ, từ đó một tuyến tiếp cận uốn cong dẫn lên khối nhà chính. Không gian phòng khách được đẩy ra khỏi sườn dốc như một khối trong suốt, mở ba hướng nhìn liên tục. Ánh sáng đi qua tán cây, tạo nên điều kiện chiếu sáng gián tiếp và biến đổi. Mái hiên lớn đóng vai trò như lớp đệm khí hậu, đồng thời mở rộng không gian sử dụng theo phương ngang.

Mặt bằng được điều chỉnh theo vị trí các cây hiện hữu, giữ nguyên hệ thực vật và tạo ra một khoảng sân cỏ phía trước. Khoảng trống này duy trì tầm nhìn thông suốt từ nội thất ra cảnh quan, đồng thời đóng vai trò như một vùng đệm giữa công trình và địa hình.

Các mặt công trình được mở để tăng cường thông gió chéo. Hành lang phía sau, hướng tây, hoạt động như một lớp cách nhiệt cho các không gian riêng tư. Tổ chức không gian phân định rõ hai vùng. Không gian sinh hoạt chung mở rộng, hướng ngoại và liên kết trực tiếp với cảnh quan. Các không gian riêng tư được thu gọn, kiểm soát ánh sáng và vi khí hậu.

Công trình sử dụng hệ kết cấu khung thép kết hợp kính, giảm tải trọng và hạn chế tác động lên nền đất dốc. Giải pháp này đồng thời tối ưu chiếu sáng tự nhiên và thông gió. Vật liệu địa phương như đá và gạch trần được sử dụng để thiết lập sự liên hệ với bối cảnh và kiểm soát chi phí xây dựng.

Bình luận

(0)
Loading...
Danh mục
Loại dự án
Nhóm thiết kế
Trần Ngọc Linh Nguyễn Đắc Nguyên Thẩm Hùng Nguyễn Công Lý Nguyễn Đăng Quang Nguyễn Ngọc Quỳnh Antoine Leriche
Dự án khác tại
Hình ảnh