Nhà Cẩm Tú Cầu
Việt Nam, Vĩnh Phúc
Hoàn thành
2022

Nhà Cẩm Tú Cầu (tên tiếng anh là Ajisai House) được đặt trên một triền dốc lớn tại Vĩnh Phúc, nơi địa hình không chỉ mở ra tầm nhìn dài về phía dãy Tam Đảo mà còn định hình trực tiếp cách công trình được tiếp cận, tổ chức và cảm nhận. Ngôi nhà không xuất hiện như một khối đơn nhất, mà được phân rã theo cao độ, trải dài trên khu đất như một chuỗi mặt phẳng được giữ lại sau quá trình đọc địa hình một cách cẩn trọng và tiết chế.

Sự tiếp cận bắt đầu từ cao độ thấp nhất, nơi khối gara và các không gian phụ trợ bám theo tuyến đường phía trước. Một lõi giao thông đứng được tách riêng, đưa người sử dụng lên cao trước khi một cây cầu thép dẫn lối băng qua khoảng vườn và mặt nước để chạm tới khối nhà chính. Hành trình này không mang tính trực tiếp mà được kéo dài có chủ ý, nơi các lớp cảnh quan đóng vai trò như những khoảng đệm, làm chậm nhịp tiếp cận và thiết lập trạng thái chuyển tiếp từ ngoài vào trong.

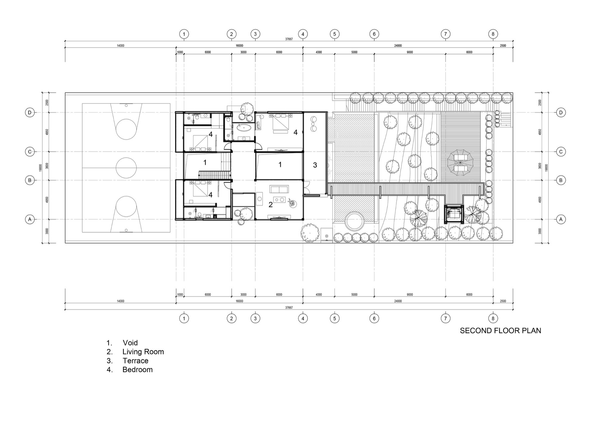
Ở cao độ lớn nhất, khối nhà chính mở ra theo một cấu trúc hình vuông với trục chữ thập, cho phép không gian tiếp cận ánh sáng và cảnh quan từ bốn phía, đồng thời duy trì một khoảng rỗng ở trung tâm. Khoảng trống này trở thành lõi tổ chức không gian, nơi ánh sáng được kéo sâu vào bên trong và các dòng khí được dẫn qua nhiều lớp trước khi thoát ra phía sau. Các phòng ngủ được bố trí bao quanh lõi này, tạo nên một cấu trúc vừa hướng tâm vừa phân tán, nơi sự riêng tư không đến từ sự đóng kín tuyệt đối mà từ khoảng cách, cao độ và mối quan hệ thị giác được kiểm soát.

Sự dịch chuyển trong nhà luôn gắn với địa hình. Các không gian không nằm trên một mặt phẳng duy nhất mà chuyển tiếp theo từng bậc cao độ, mở dần về phía sau khu đất. Mỗi bước di chuyển là một sự thay đổi về tầm nhìn, khi đường chân trời được nâng lên và cảnh quan trở nên sâu hơn. Chuỗi không gian này kết thúc bằng một mặt phẳng ổn định, nơi khu vườn và sân thể thao cùng tồn tại như một khoảng nghỉ sau chuyển động liên tục theo triền dốc.

Về vật liệu, công trình được triển khai trên một hệ kết cấu thép, cho phép các không gian mở rộng và linh hoạt. Lớp hoàn thiện bằng đá và gỗ tự nhiên mang lại cảm giác đặc và ấm, thiết lập một đối trọng với tính nhẹ và mở của kết cấu. Các mái dốc lớn cùng hệ hiên sâu bao bọc công trình, vừa như một lớp bảo vệ khí hậu, vừa định hình cách không gian được trải dài và kéo ra phía ngoài. Những gợi nhắc tới kiến trúc truyền thống Việt Nam xuất hiện trong cách tổ chức mái, hiên và hàng cột, nhưng được chuyển hóa thành một ngôn ngữ đương đại, nơi ranh giới giữa trong và ngoài luôn ở trạng thái linh hoạt.

Cảnh quan được tích hợp như một phần của cấu trúc thay vì một lớp phủ bên ngoài. Mái của khối gara trở thành một khu vườn trồng Ajisai, tạo nên một bề mặt thứ hai khi nhìn từ trên cao và đồng thời là một lớp không gian có thể được quan sát từ nhiều vị trí khác nhau trong nhà. Sự lặp lại của các lớp sân, mái và vườn hình thành một hệ chồng lớp liên tục, nơi kiến trúc và địa hình dần hòa vào nhau, không còn tách biệt rõ ràng.

Bình luận

(0)
Loading...
Danh mục
Loại dự án
Nhóm thiết kế
Trần Ngọc Linh Nguyễn Huy Hải Vũ Thanh Tâm Nguyễn Đắc Nguyên
Dự án khác tại
Hình ảnh