Nhà Tân Phú
Việt Nam, Hồ Chí Minh
Hoàn thành
2019
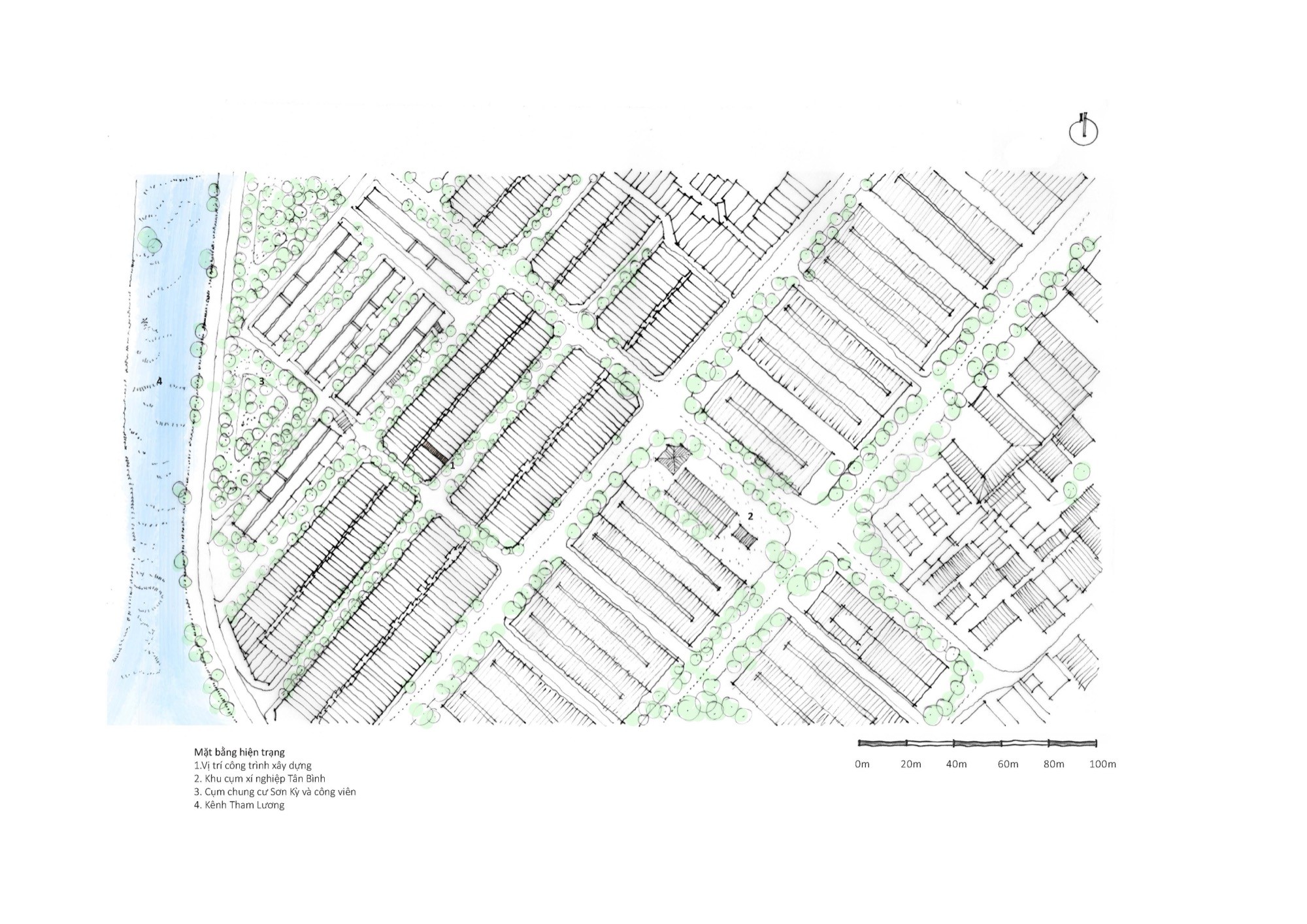
Trong bối cảnh các đô thị lớn đang phát triển nhanh, mô hình nhà ở liên kế và nhà lô phố với kích thước phổ biến như 4×16m hay 5×14m đã trở thành một hình thái cư trú đặc trưng. Tuy nhiên, thay vì chỉ tập trung vào việc khắc phục những vấn đề cố hữu của môi trường đô thị như ô nhiễm không khí hay tiếng ồn, dự án này tìm cách đặt lại câu hỏi về thói quen sống và tổ chức lại không gian theo hướng cởi mở, gần gũi với tự nhiên, đồng thời đáp ứng nhu cầu riêng của từng thành viên trong gia đình.

Xuất phát điểm của thiết kế đến từ việc quan sát đời sống hằng ngày của người sử dụng, từ cách họ di chuyển, sinh hoạt, nghỉ ngơi... cùng với những điều kiện tự nhiên sẵn có của khu đất, như hàng cây vỉa hè hay ánh nắng ban mai từ hướng Đông. Trên cơ sở đó, lớp cây xanh và dây leo ở mặt tiền được tổ chức như một bộ lọc sinh thái, giúp giảm thiểu bụi và tiếng ồn, đồng thời kiểm soát cường độ ánh sáng trong suốt chu kỳ ngày và mùa. Hệ khung lam bê tông bao phủ toàn bộ mặt đứng và vươn lên tầng thượng không chỉ mang vai trò thẩm mỹ mà còn như một thiết bị khí hậu thụ động, cho phép ánh sáng, gió và độ ẩm tự nhiên điều tiết chất lượng vi khí hậu bên trong.

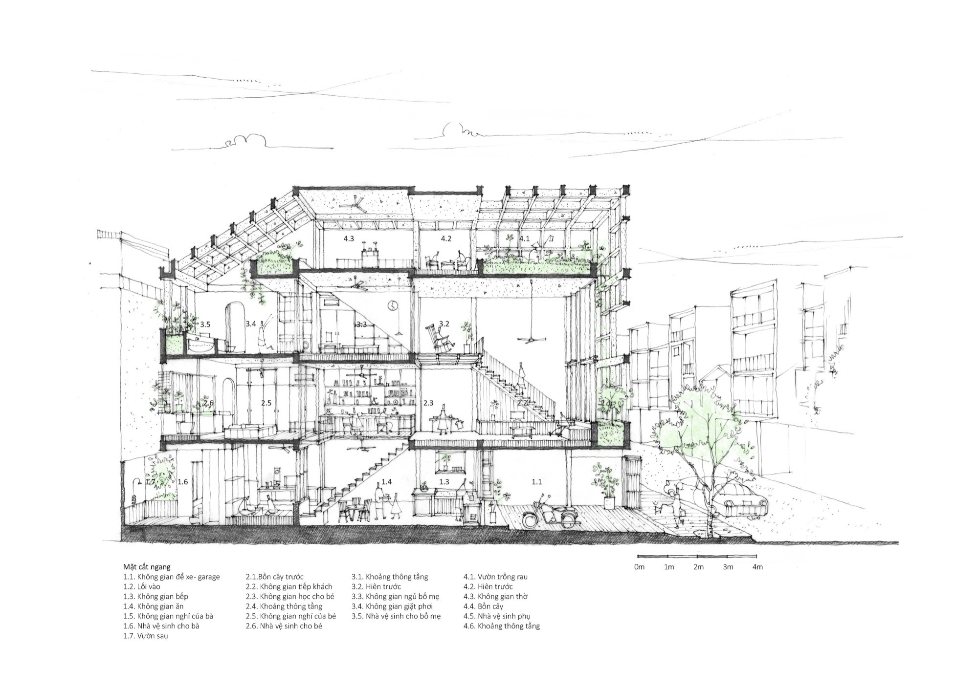
Không gian nội thất được triển khai như một chuỗi liên hoàn của những khoảng đóng – mở, nơi các tầng và các phòng kết nối với nhau thông qua hệ thống thông tầng lệch. Cách tổ chức này tạo điều kiện cho sự giao tiếp liên thế hệ trong gia đình, đồng thời duy trì sự riêng tư cần thiết cho từng cá nhân. Các không gian công cộng như phòng khách, khu sinh hoạt chung hay bếp được mở rộng và đan xen với những không gian riêng, hình thành sự liên tục trong hoạt động và tăng khả năng “gặp gỡ” tự nhiên giữa các thành viên – điều thường bị thiếu hụt trong nhịp sống đô thị hiện đại.

Khu bếp được mở ra như một điểm chuyển tiếp từ ngoài vào trong, đóng vai trò là trung tâm của đời sống gia đình. Phòng của người bà được đặt ở vị trí đón nắng sớm, thuận tiện quan sát sinh hoạt của con cháu, trong khi góc học tập của trẻ được bố trí liền kề phòng ngủ, cho phép cha mẹ dễ dàng tương tác. Phòng ngủ chính có hiên lớn nối với khoảng sinh hoạt chung phía trước qua thông tầng, đồng thời kết nối với hiên sau – nơi bố trí khu giặt và phòng tắm. Trên tầng thượng, phòng thờ và khu vườn rau nhỏ tạo nên một lớp không gian vừa riêng tư, vừa hướng nội, nơi sự tĩnh lặng và tự nhiên gặp nhau trong đời sống thường nhật.

Tổng thể ngôi nhà được hình dung như một cơ thể sống, trong đó các yếu tố tự nhiên, vật chất và con người tương tác không ngừng. Thiết kế không hướng tới việc biểu diễn hình thức mà tập trung vào cách không gian được sử dụng, cách ánh sáng và gió di chuyển, cách các thành viên cư trú và gắn bó. Ở đó, nhu cầu thực của người ở trở thành trung tâm định hình nên toàn bộ cấu trúc – một ngôi nhà mở ra từ bên trong, sống động và thích ứng trong bối cảnh đô thị đương đại.

Bình luận

(0)
Loading...
Danh mục
Loại dự án
Dự án khác tại