68 home n café
Việt Nam, An Giang
Hoàn thành
2024

Trong bối cảnh đô thị ven biển Rạch Giá, nơi mật độ nhà phố dày đặc và âm thanh từ các nhà nuôi yến trở thành một lớp nền quen thuộc của đời sống, công trình được định vị như một khối kiến trúc tiết chế, chủ động giữ khoảng cách với sự ồn ã xung quanh. Thay vì phản ứng bằng hình thức phô trương, thiết kế lựa chọn một ngôn ngữ tối giản, tập trung vào tổ chức không gian và kiểm soát các mối quan hệ thị giác.

Các khoảng mở được xử lý như những lát cắt có chủ đích trên khối tích đặc, giúp lấy sáng và thông gió, đồng thời thiết lập một tiết tấu thị giác vừa phải, giúp định hướng tầm nhìn và kiểm soát mức độ kết nối giữa bên trong và bên ngoài. Tầng một, với dải kính kéo dài, tạo nên một liên hệ trực tiếp nhưng nhẹ với không gian đô thị, cho phép các hoạt động bên trong quán café giao tiếp với dòng chuyển động bên ngoài. Ngược lại, tầng trên được thu gọn và kín đáo hơn, ưu tiên sự riêng tư cho không gian ở.

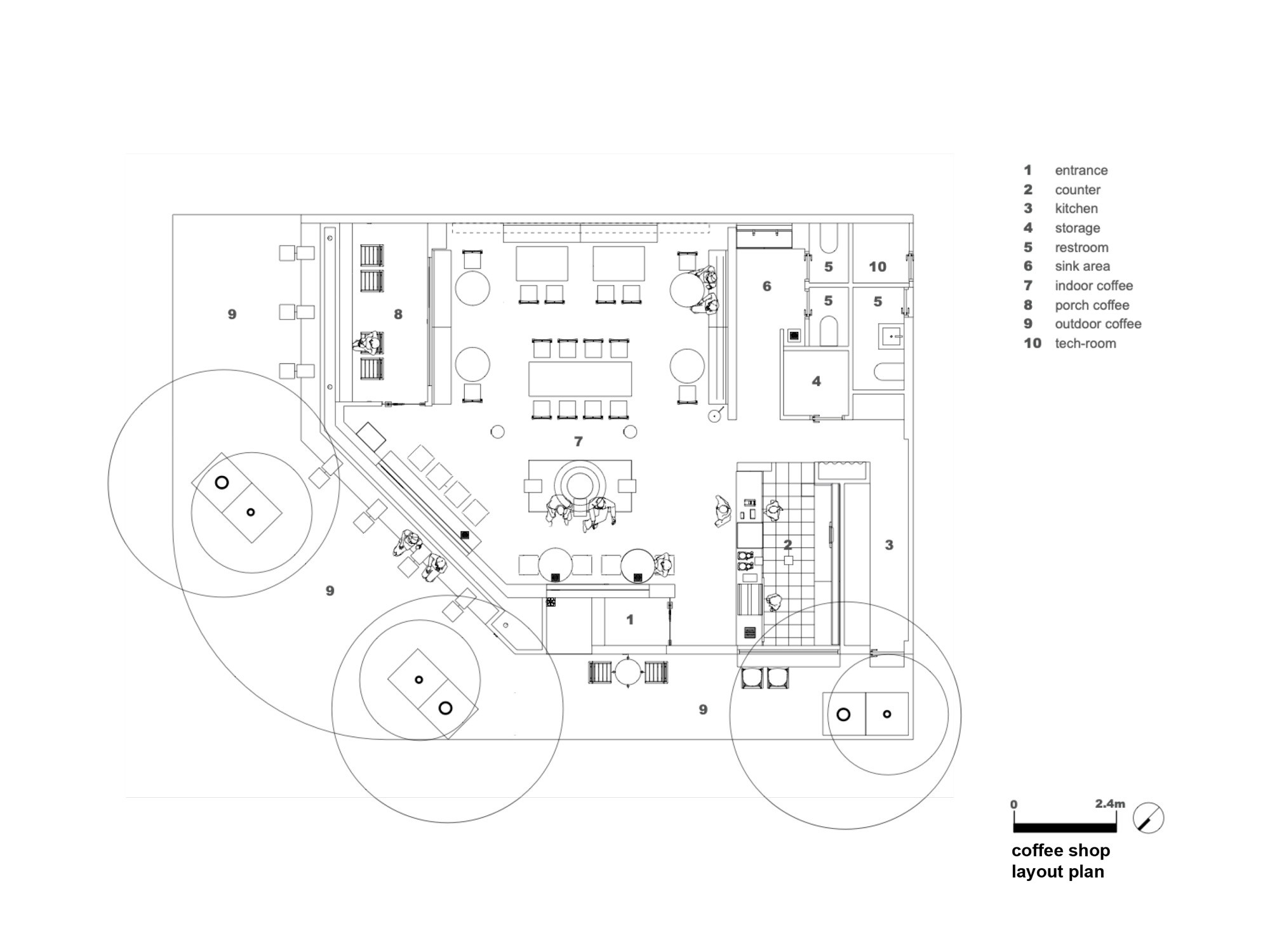
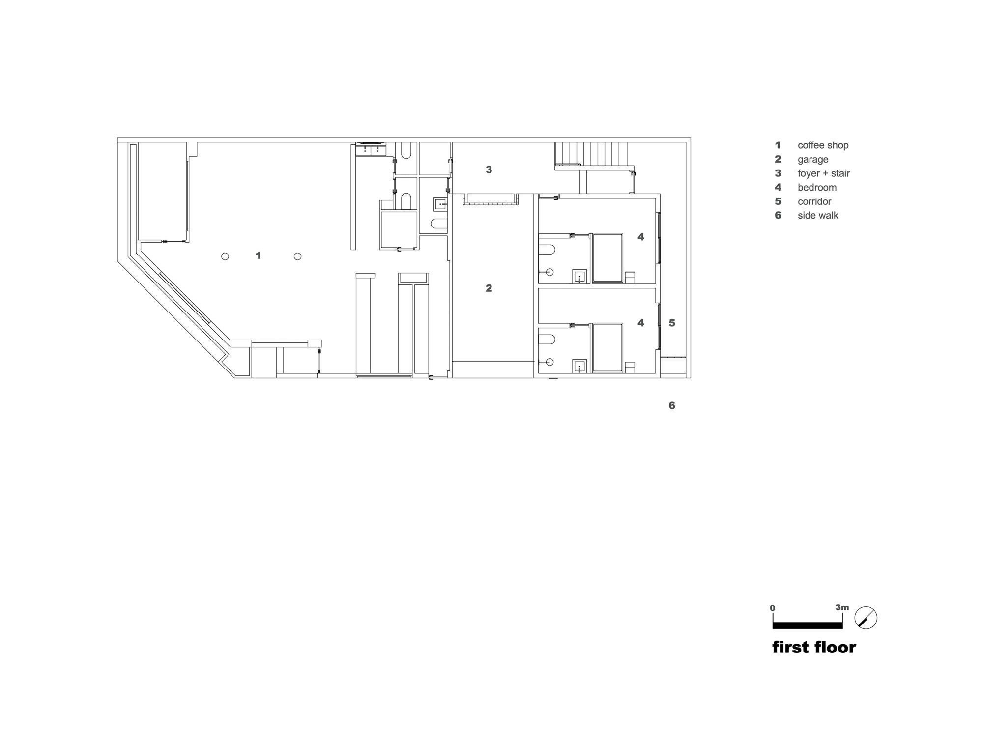
Tổ chức chức năng được giải quyết rõ ràng theo chiều đứng. Không gian café ở tầng trệt được bố trí gọn, với quầy pha chế như một điểm neo trung tâm. Các vị trí ngồi được sắp xếp dọc theo các ô cửa lớn, tận dụng ánh sáng tự nhiên và những khoảnh khắc chuyển động của phố. Cách bố trí này không tìm cách tạo ra một không gian trải nghiệm phức tạp, mà hướng tới sự rõ ràng, dễ sử dụng và linh hoạt trong vận hành.

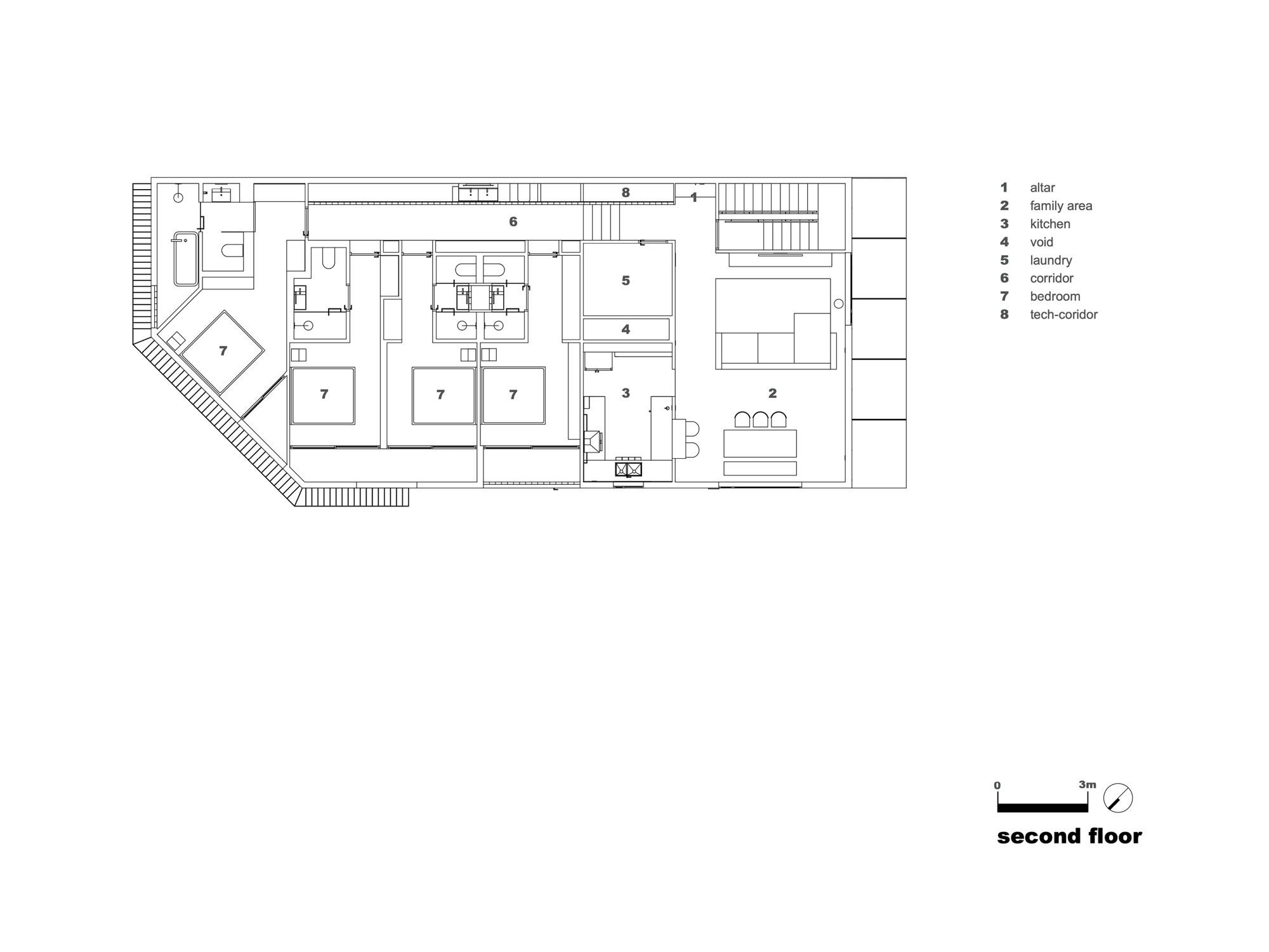
Phần không gian ở phía trên được định hình như một lớp không gian tĩnh. Các phòng ngủ và khu sinh hoạt chung không tách biệt hoàn toàn, mà liên kết thông qua các khoảng đệm và hành lang, tạo nên một chuỗi không gian liên tục nhưng vẫn đảm bảo riêng tư cần thiết. Hệ giếng trời được phân bổ rải rác trong công trình, đóng vai trò đưa ánh sáng và thông gió tự nhiên vào sâu bên trong, đồng thời tạo chiều sâu không gian và những thay đổi vi tế trong trải nghiệm theo thời gian trong ngày.

Ngôn ngữ vật liệu được giữ ở mức tối giản, với bê tông mài, gỗ sáng màu và gạch kính. Sự kết hợp này không nhằm tạo hiệu ứng tương phản mạnh, mà hướng tới một tổng thể nhẹ, đồng nhất và dễ thích nghi với điều kiện khí hậu cũng như đời sống nhiều thế hệ. Các bề mặt vật liệu được xử lý giản lược, nhấn mạnh vào tính liên tục và cảm giác chạm trực tiếp, thay vì các chi tiết trang trí.

Bình luận

(0)
Loading...
Danh mục
Loại dự án
Nhóm thiết kế
Nguyễn Hồng Quân Đặng Thanh Tính Lê Hiển
Dự án khác tại