22YB1
Việt Nam, Hà Nội
Hoàn thành
2025
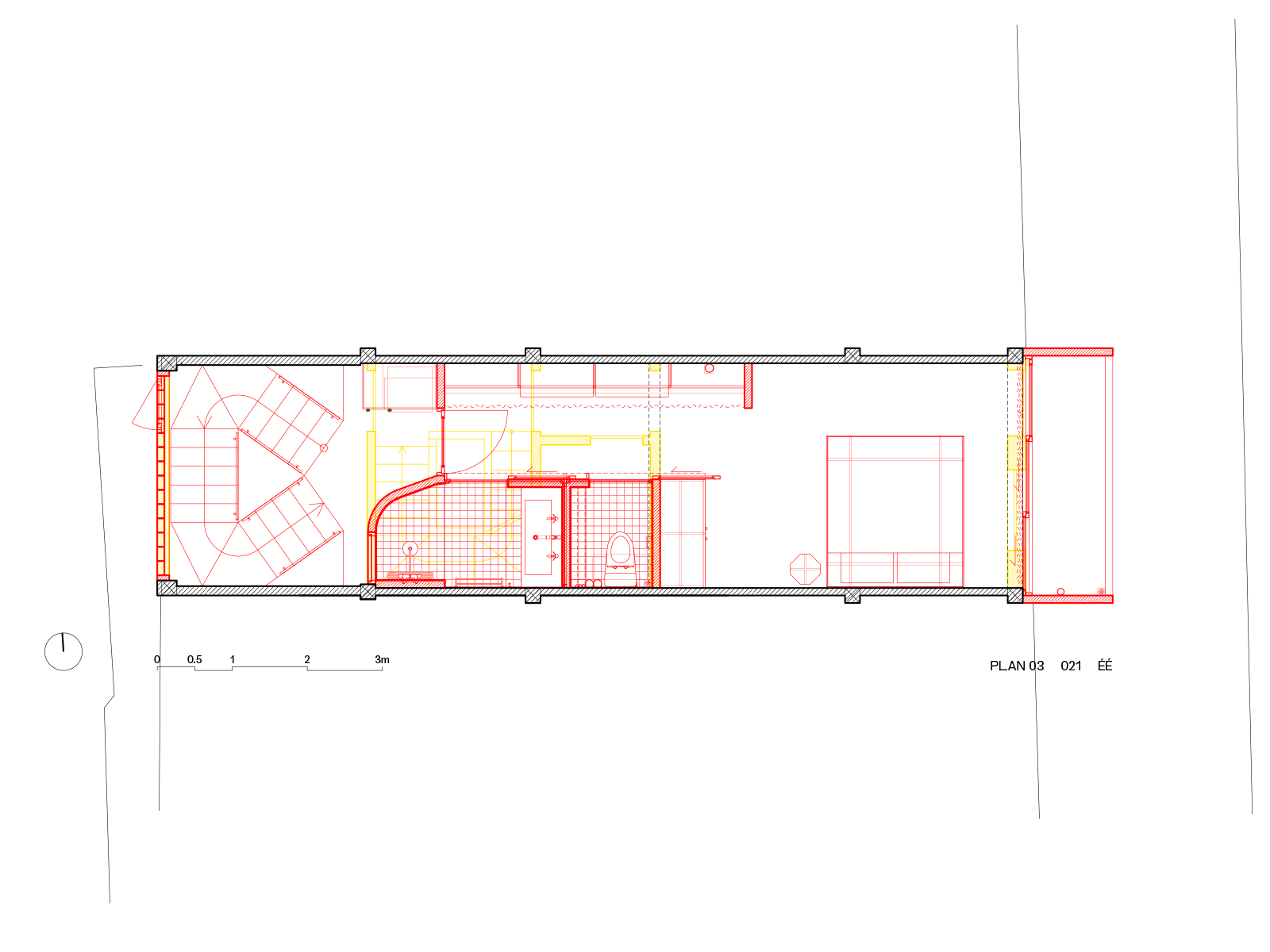
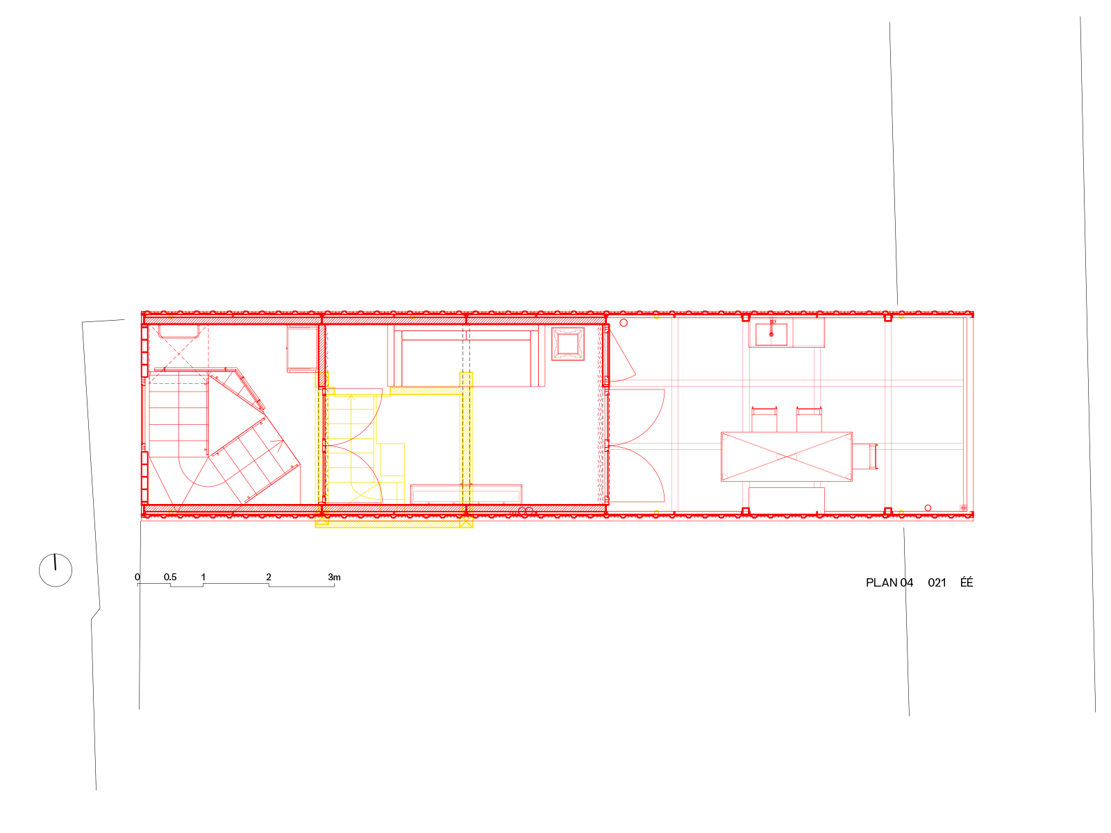
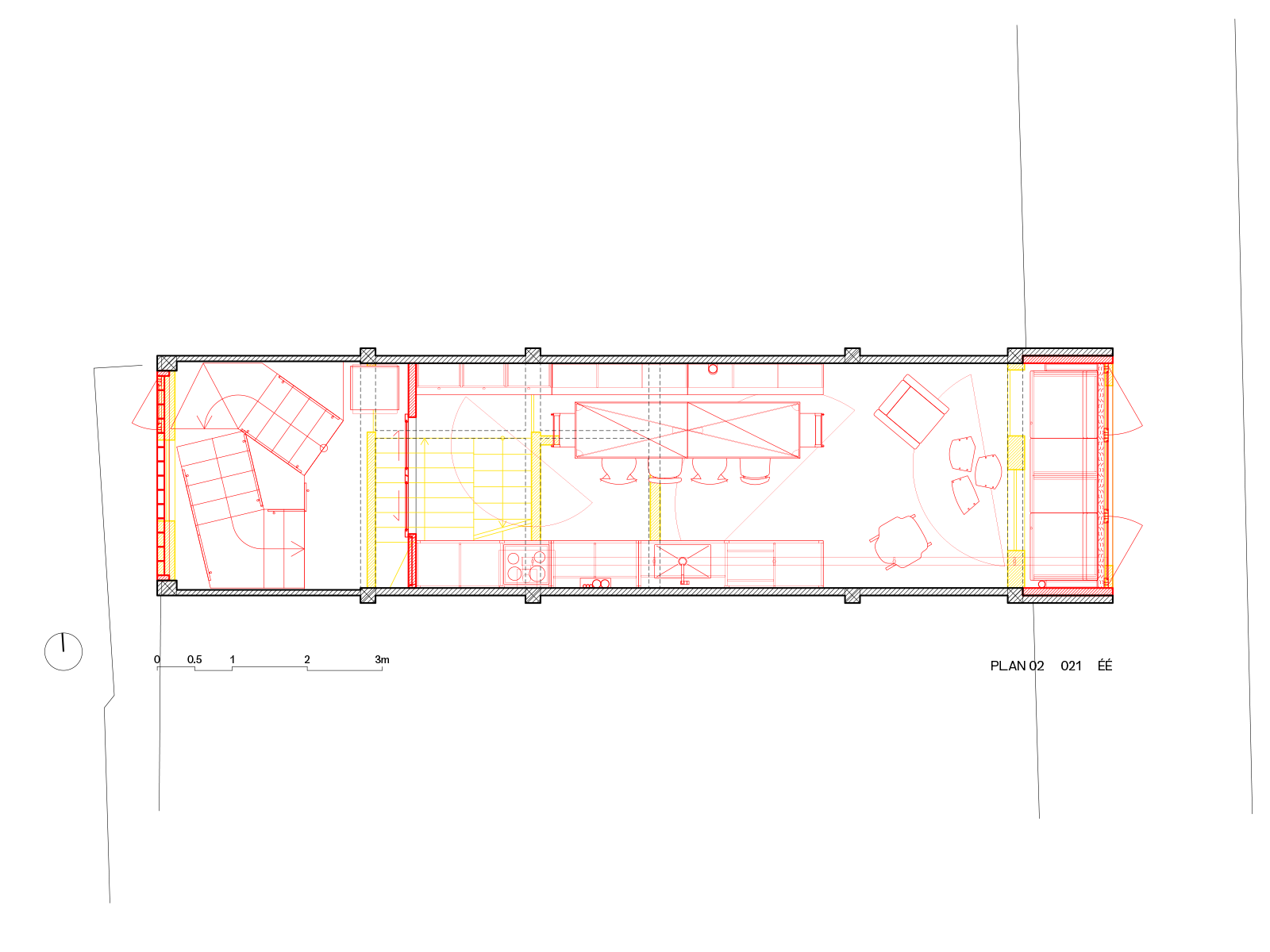
22YB1 là một căn nhà ống cũ giữa Hà Nội, tối và bí sau nhiều năm sử dụng. Đập bỏ hoàn toàn để xây mới thì không khó, nhưng trong dự án này, nhóm thiết kế lựa chọn tìm cách ứng xử với cái cũ.

Mặt tiền được giữ lại như một dấu vết ký ức đô thị, với địa chỉ và năm “tái sinh” được đắp nổi như một cách ghi nhận sự tiếp nối. sự can thiệp diễn ra bên trong: cầu thang dời về cuối nhà, vách ngăn được gỡ bỏ, một khoảng rỗng xuất hiện để ánh sáng và không khí đi xuyên qua công trình.

Phía sau, lớp gạch kính hoạt động như một vùng trung gian, đủ mở để lấy sáng nhưng cũng đủ kín để giữ nhịp sống riêng. Những điều chỉnh này không nhằm tạo hình, mà để trả lại những điều kiện sống cơ bản cho người sử dụng. Phần còn lại của công trình được giữ ở mức tối giản. Các bề mặt gần như trung tính, nhường chỗ cho một vài điểm nhấn màu sắc xuất hiện rải rác.

Tầng trệt là văn phòng, phía trên là không gian sống mở được chia sẻ bởi gia đình, người thân, bạn bè . Ở đó, kiến trúc sư không đứng ngoài công trình của mình. Họ sống trong đó, làm việc trong đó, và mỗi ngày tiếp tục điều chỉnh cách không gian vận hành mỗi ngày. 22YB1, vì thế, không chỉ là cải tạo một căn nhà mà là học cách sống cùng những gì đã có.

Bình luận

(0)
Loading...
Danh mục
Loại dự án
Nhóm thiết kế
Bùi Quý Sơn Paul-Antoine Lucas
Dự án khác tại
Hình ảnh