Terracotta Breath
Việt Nam, Đà Nẵng
Hoàn thành
2024
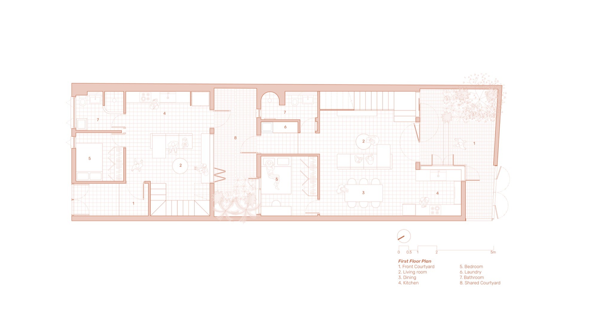
Ẩn mình trong một con hẻm hẹp của Đà Nẵng, Terracotta Breath hiện diện lặng lẽ, gắn chặt với nhịp sống thường nhật thay vì tìm kiếm sự nổi bật về hình ảnh. Trên khu đất 7×22m điển hình của đô thị Việt Nam, công trình được chia thành hai khối nhà cho hai thế hệ, đặt trước – sau và kết nối bằng một khoảng sân trong như một nhịp ngắt giữa các lớp không gian.

Khoảng sân này không chỉ là giải pháp tổ chức, mà là lõi vận hành của ngôi nhà. Ánh sáng trượt qua các bề mặt gạch, gió di chuyển giữa những khoảng mở, cây xanh chen vào các ranh giới. Tất cả tạo nên một hệ vi khí hậu tự nhiên, đồng thời định hình cách các thành viên gặp gỡ và duy trì khoảng cách cần thiết. Kiến trúc, trong trường hợp này, không áp đặt mà âm thầm thiết lập điều kiện cho các tương tác diễn ra.

Ngôn ngữ công trình được xây dựng từ những vật liệu gần gũi: gạch, tre, gỗ, lớp trát màu đất nung. Không xử lý cầu kỳ, các bề mặt giữ lại tính nguyên bản, cho phép công trình thích nghi và biến đổi theo thời gian và khí hậu, như một phần tiếp diễn của bối cảnh đô thị xung quanh.

Bình luận

(0)
Loading...
Danh mục
Loại dự án
Nhóm thiết kế
Lê Văn Tấn Quyền Trần Thị Ánh Nguyệt
Dự án khác tại