Sahi Homestay Retreat
Việt Nam, Huế
Hoàn thành
2021

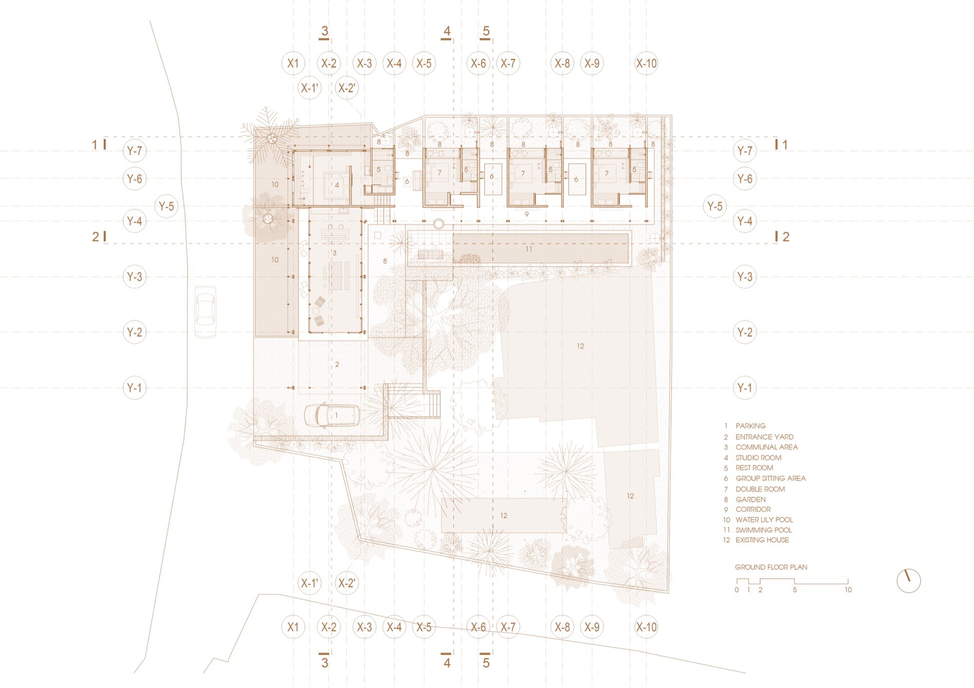
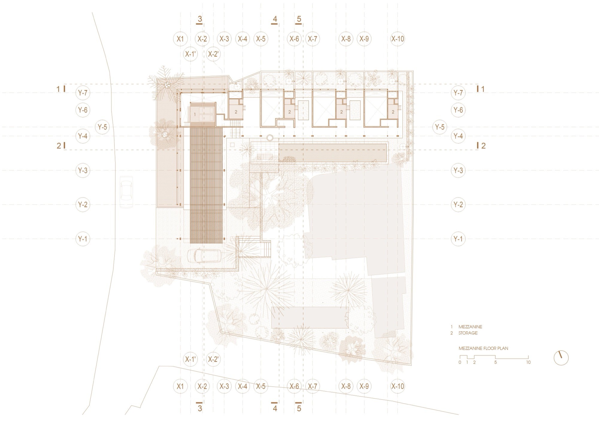
Ẩn mình bên dòng sông Hương, Sahi Homestay Retreat là một không gian nghỉ dưỡng nhỏ mang tinh thần Huế trong hình hài của kiến trúc đương đại. Nằm trong khu dân cư yên tĩnh, cách trung tâm thành phố chừng hai cây số, Sahi Homestay được hình thành từ mong muốn của chủ nhà về một nơi nghỉ dưỡng giản dị, ấm áp và chan hòa với thiên nhiên. Khu đất rộng hơn 1.300m² đã có sẵn những căn nhà cũ cùng tán cây lâu năm. Thay vì phá bỏ, các kiến trúc sư chọn cách kế thừa ký ức hiện hữu, sử dụng mặt bằng hình chữ L chạy dọc theo hai cạnh khu đất để mở ra khoảng sân trung tâm.

Kiến trúc được tổ chức theo nhịp điệu của gió và ánh sáng cùng các khối chức năng rời nhau bởi những khoảng trống nhỏ, vừa đảm bảo thông thoáng trong khí hậu ẩm ướt của Huế, vừa mang lại cảm giác riêng tư cho từng phòng. Từ những hành lang và hiên gỗ, tầm nhìn ra cảnh quan thay đổi liên tục, mở ra nhiều góc tiếp cận với vườn, bể bơi và khoảng trời phía trên. Các phòng ngủ được lùi sâu vào trong để tạo thành những khu vườn riêng hướng nội, yên tĩnh và đầy chất thơ.

Sự giản dị trong tổ chức không gian đi đôi với tính bền vững trong vật liệu. Phần lớn cấu kiện của công trình được tái sử dụng từ gỗ cũ trong thành phố, làm sạch và gia công lại để trở thành kết cấu chính, trần nhà, cửa và đồ nội thất. Chất cảm của gỗ, gạch thẻ trần, ngói đất nung và bê tông thô hòa quyện thành một bảng vật liệu ấm áp, mang sắc thái tự nhiên của miền Trung. Việc tái sử dụng gỗ không chỉ giảm chi phí xây dựng mà còn góp phần gìn giữ tài nguyên, tiếp nối vòng đời vật chất của đô thị.

Hệ mái dốc rộng được thiết kế để thích ứng với lượng mưa lớn của Huế, thu gom nước về bể ngầm dung tích 36m³, cung cấp lại cho hệ thống tưới, vệ sinh và hồ cá. Hệ lam gỗ bao quanh khối nhà đóng vai trò như lớp màng bảo vệ thứ hai, lọc ánh sáng, che mưa, giảm áp lực gió mùa bão và cho phép công trình thông gió tự nhiên.

Không gian lưu trú được chia thành hai loại hình. Phòng đôi hướng vườn với khu tắm ngoài trời mang lại cảm giác gần gũi, trong khi phòng studio được bao quanh bởi hồ sen và ánh sáng phản chiếu trên mặt nước. Mỗi căn phòng có sắc độ vật liệu riêng, tạo nên những trải nghiệm khác biệt trong cùng một tổng thể thống nhất

Bình luận

(0)
Loading...
Danh mục
Loại dự án
Dự án khác tại
Hình ảnh