Flat #02
Việt Nam, Hồ Chí Minh
Hoàn thành
2025
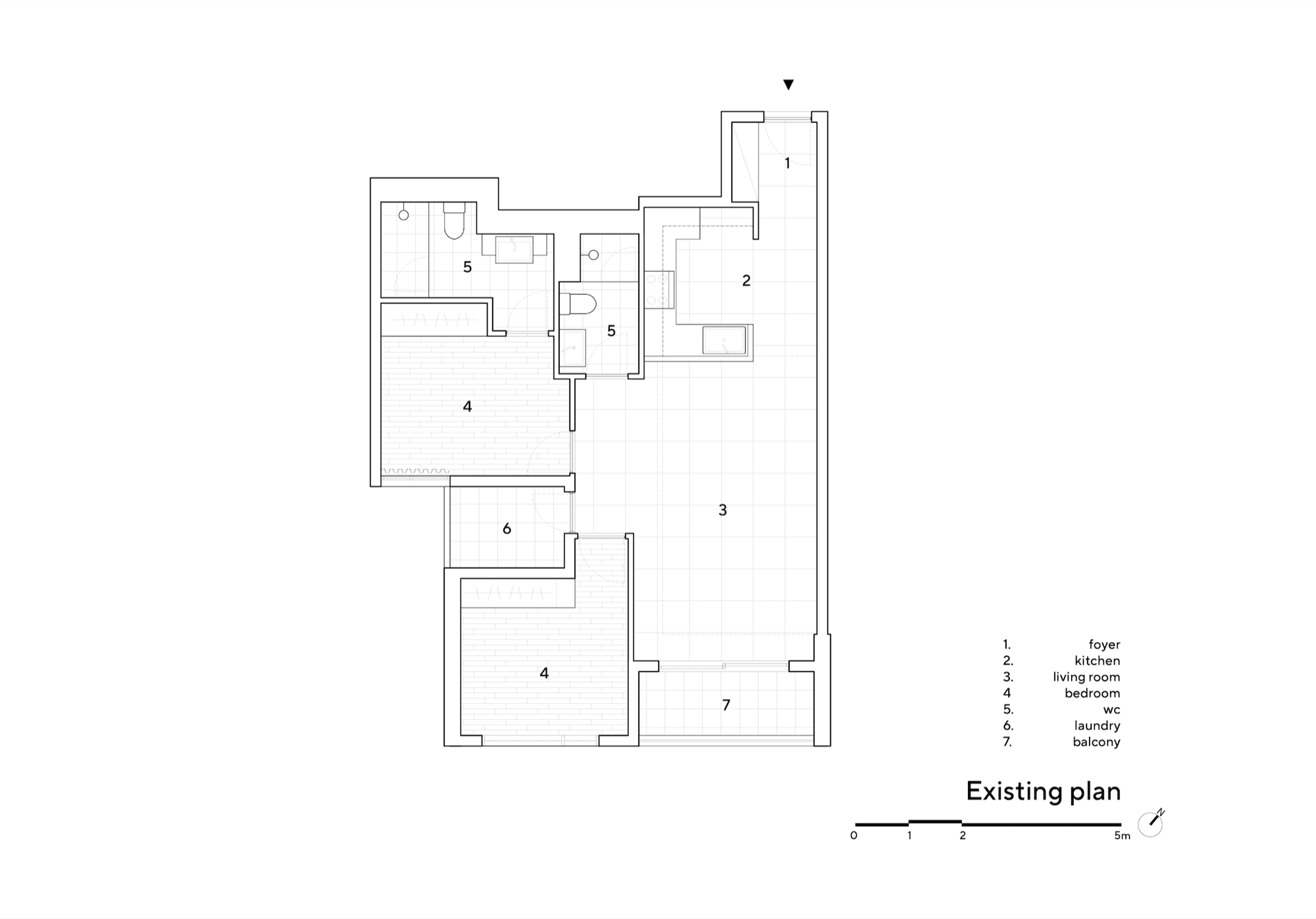
Flat #02 hiện ra như một lát cắt điển hình của đời sống đô thị: hẹp, sâu và gần như khép kín trong những giới hạn sẵn có. Thay vì “làm mới” bằng thay thế, nhóm thiết kế chọn giữ lại cấu trúc và vật liệu hiện hữu, và dịch chuyển trọng tâm sang việc tái tổ chức không gian sống.

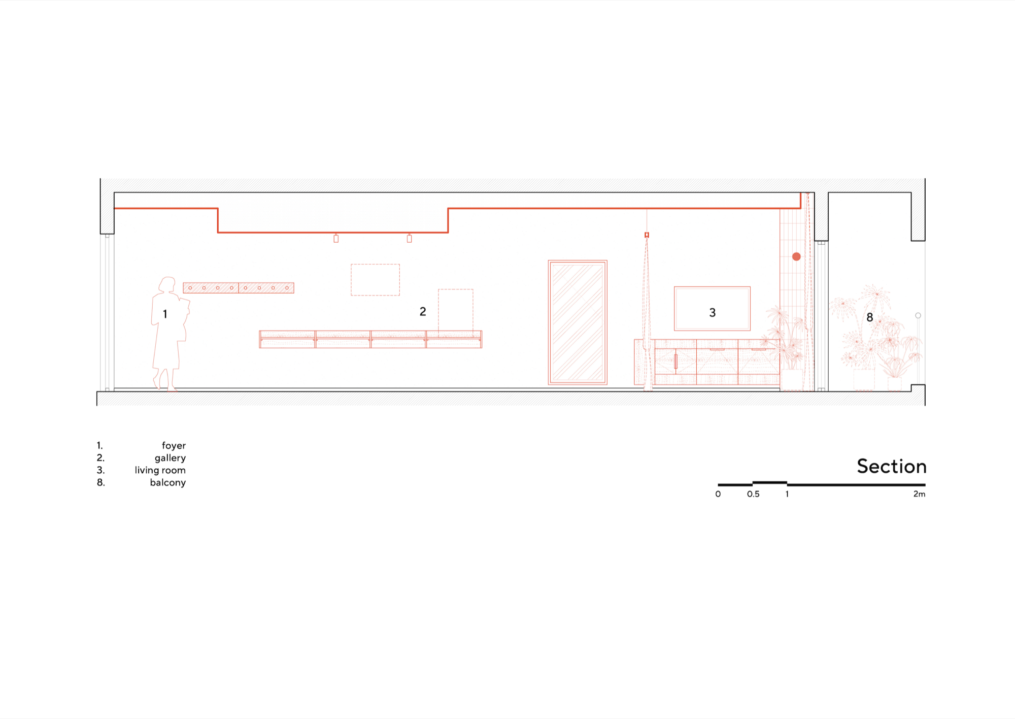
Trần nhà, trong dự án này, không còn là bề mặt trung tính mà trở thành công cụ định hình. Những chuyển tiếp cao độ, cùng lớp ánh sáng ấm chạy dọc, tạo nên một nhịp điệu không gian rõ ràng: từ khu bếp nén lại, trầm và đặc, đến vùng sinh hoạt phía trong thoáng hơn, mềm hơn. Không cần vách ngăn, các lớp không gian vẫn được nhận diện bằng cảm giác.

Các can thiệp vì thế luôn ở trạng thái “vừa đủ”. Một lớp rèm linen mỏng, khi khép lại, làm dịu ánh sáng và biến đổi chức năng; hệ tủ bếp xanh đậm, mảng gạch bóng và bề mặt gỗ tối tạo nên chiều sâu thị giác, như những lớp nền chồng lên nhau. Ánh sáng điểm rơi xuống từng vị trí, giữ nhịp cho không gian thay vì chiếu sáng đồng đều.

Bình luận

(0)
Loading...
Danh mục
Loại dự án
Nhóm thiết kế
Takahito Yamada Nobuhiro Inudoh Nguyen Tue Chan
Dự án khác tại