Nhà HN08
Việt Nam, Hà Nội
Hoàn thành
2024
Căn nhà được xây dựng cho một gia đình ba thế hệ, trên khu đất nằm trong khu dân cư đông đúc tại đô thị. Mục tiêu của công trình là tạo ra không gian sống thoáng đãng, nhiều ánh sáng và cây xanh, nhưng vẫn đảm bảo sự riêng tư và tiện nghi cho sinh hoạt hàng ngày.

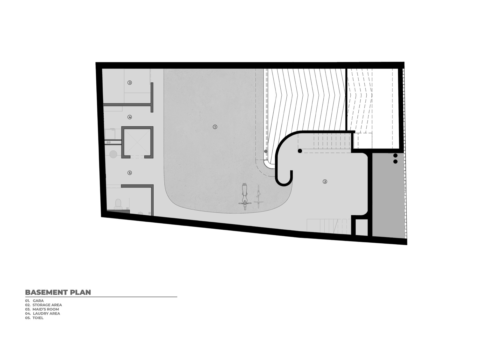
Cấu trúc nhà được phát triển theo chiều đứng, gồm bảy tầng và tầng mái, với các lớp không gian xen kẽ: sân vườn, hiên, khoảng trống và giếng trời. Tổ chức đa lớp này giúp thông gió tự nhiên và đưa ánh sáng vào sâu bên trong, đồng thời kết nối các tầng theo trục đứng. Lõi thang phía sau đóng vai trò trung tâm, hoạt động như “lá phổi” của ngôi nhà, dẫn gió và ánh sáng đến từng tầng, giảm sự phụ thuộc vào hệ thống cơ học.

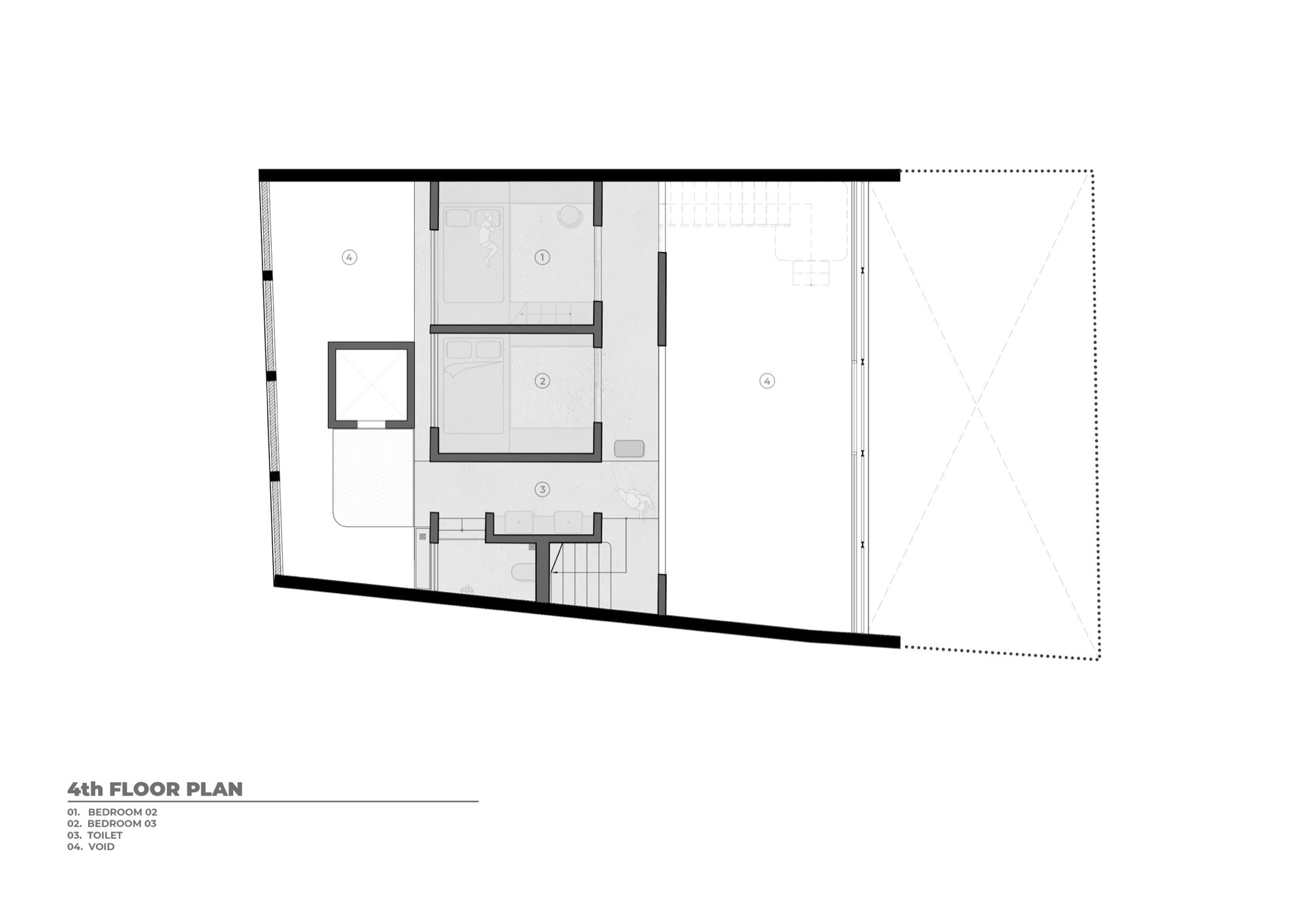
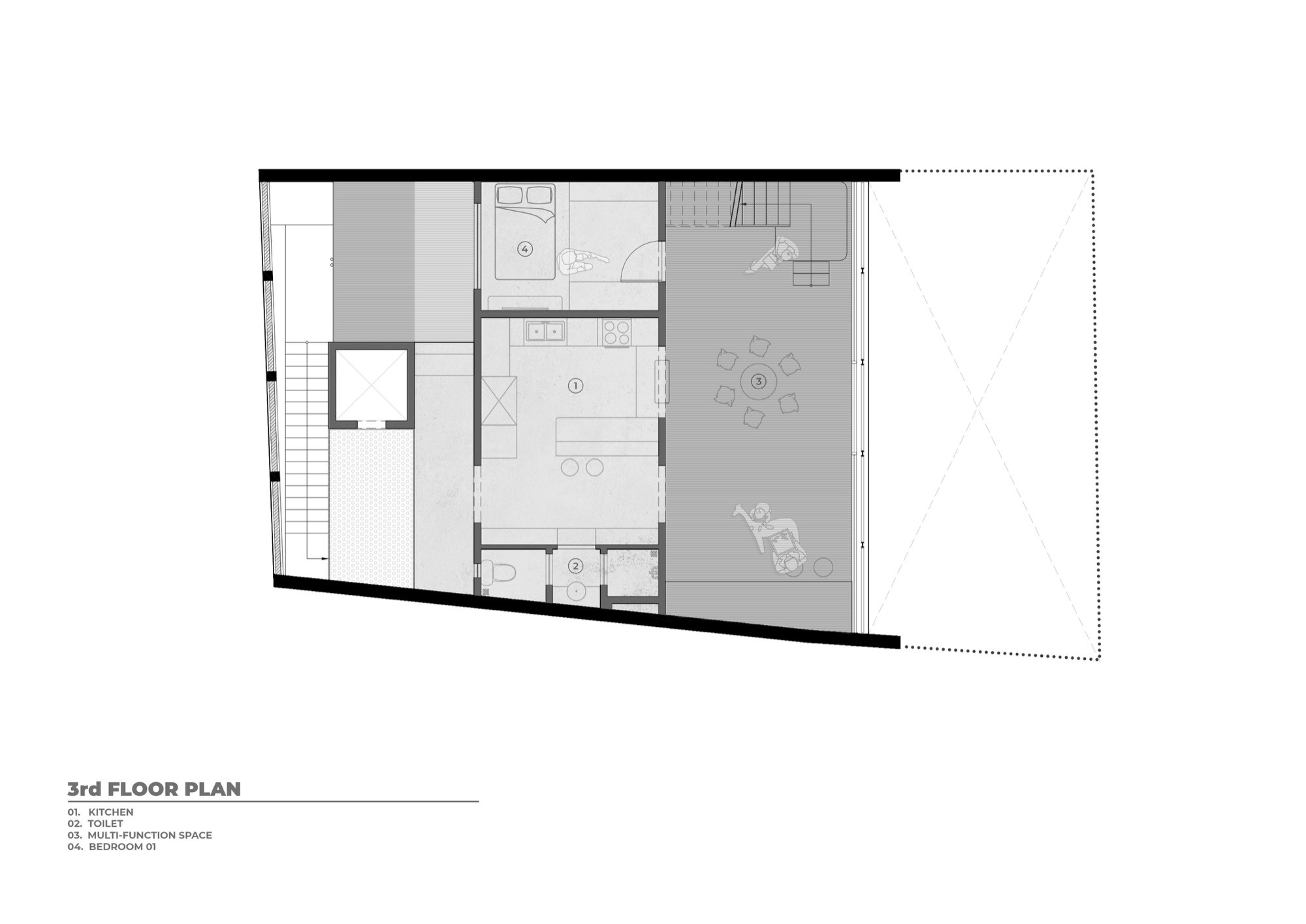
Khu vườn phía trước được nâng cao, tạo thành khoảng đệm tách biệt với phố. Dốc thoải từ vườn xuống sân chơi giúp mở rộng mặt bằng, đồng thời tăng diện tích cây xanh. Các lớp lam và hệ cây trồng được bố trí nhằm kiểm soát ánh sáng và đảm bảo riêng tư mà không gây cảm giác khép kín. Tầng một là sân chơi kết hợp hiên gỗ, nơi các thành viên có thể sinh hoạt hoặc thư giãn. Tầng hai là phòng khách và khu thưởng trà, kết nối trực tiếp với vườn và khoảng thông tầng. Hệ cửa kính hai lớp có thể mở linh hoạt, cho phép điều chỉnh độ thoáng và độ riêng tư. Tầng ba và bốn bố trí phòng ngủ và không gian sinh hoạt chung, xoay quanh giếng trời để tăng kết nối thị giác và thông gió chéo. Mặt đứng được xử lý hai lớp gồm kính và lam che nắng tự động nhằm giảm bức xạ nhiệt và cải thiện vi khí hậu.

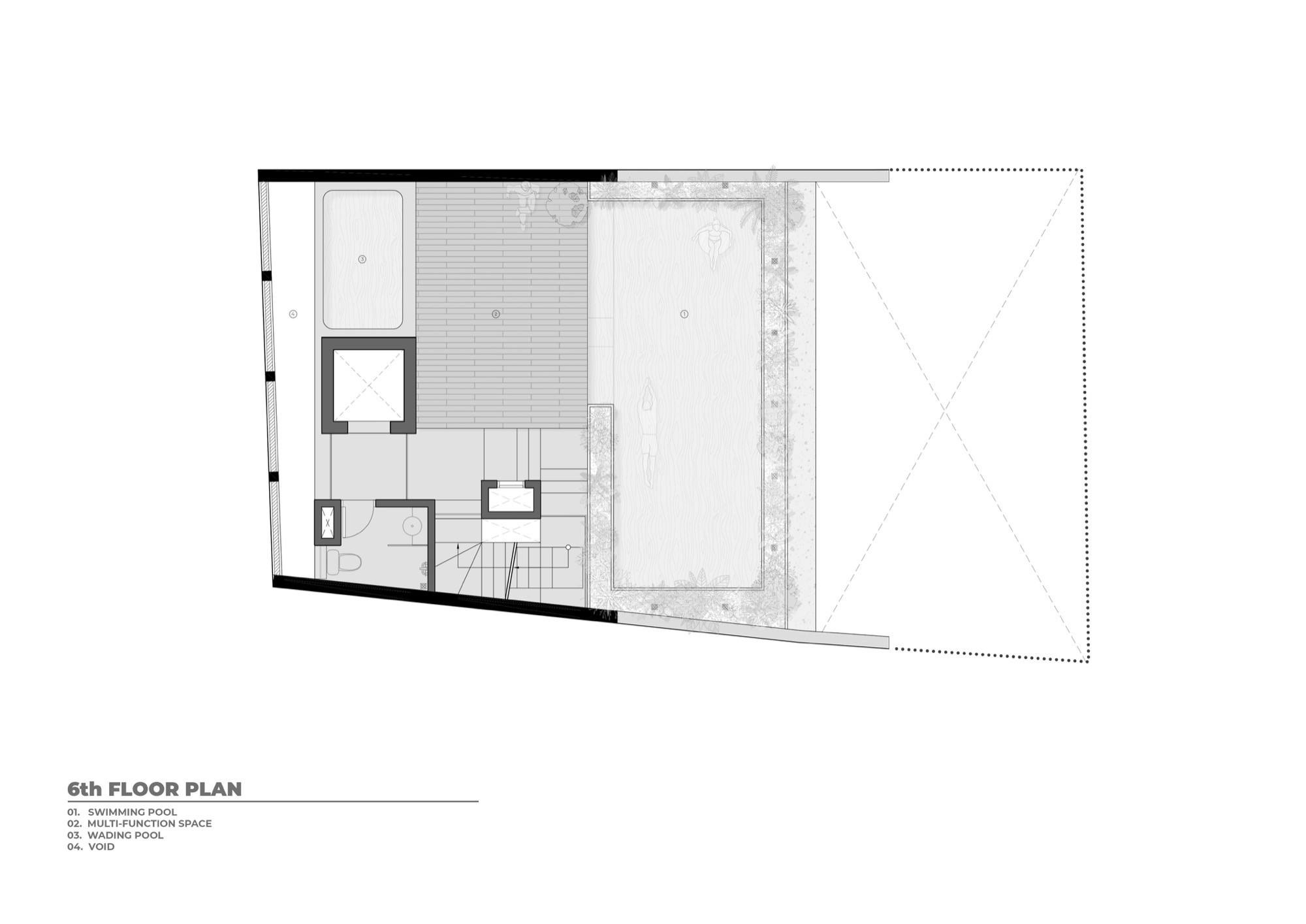
Tầng năm dành cho phòng ngủ chính, tận dụng hướng nhìn ra vườn và ánh sáng từ giếng trời. Tầng sáu là khu sinh hoạt chung với sàn gỗ ngoài trời và bể bơi, được bao quanh bởi cây xanh. Tầng bảy là không gian thờ hướng ra mặt tiền, sử dụng hệ lam gỗ điều khiển tự động để cân bằng ánh sáng và sự trang nghiêm. Trên mái là khu kỹ thuật kết hợp vườn rau nhỏ, mở ra tầm nhìn thoáng và không gian thư giãn.

HN08 House không tìm cách phô diễn hình thức mà tập trung vào tổ chức không gian, chiếu sáng, và thông gió, được xem như những yếu tố cơ bản nhưng mang lại chất lượng sống bền vững cho nhà ở đô thị.

Bình luận

(0)
Loading...
Danh mục
Loại dự án
Nhóm thiết kế
Bùi Quang Tiến Hoang Phuong Nam Luong Thi Hong Nhung Phạm Như Tâm Trần Bá Quân Nguyễn Đức Hậu Lê Hữu Phong Ngô Văn Nhật
Dự án khác tại
Hình ảnh