Nhà Di Linh
Việt Nam, Lâm Đồng
Hoàn thành
2022
Tọa lạc trên đỉnh một triền đồi tại Di Linh, ngôi nhà được tiếp cận qua một con đường đất vẫn còn lầy trơn sau mỗi cơn mưa. Điều kiện địa hình và khí hậu này không chỉ là bối cảnh, mà trở thành tiền đề trực tiếp cho cách tiếp cận thiết kế. Thay vì áp đặt một hình thái kiến trúc nổi bật, công trình lựa chọn chiến lược tiết chế, gọn nhẹ và thích ứng, đặt mình thấp xuống trong cảnh quan rộng mở của đồi chè và rừng thông.

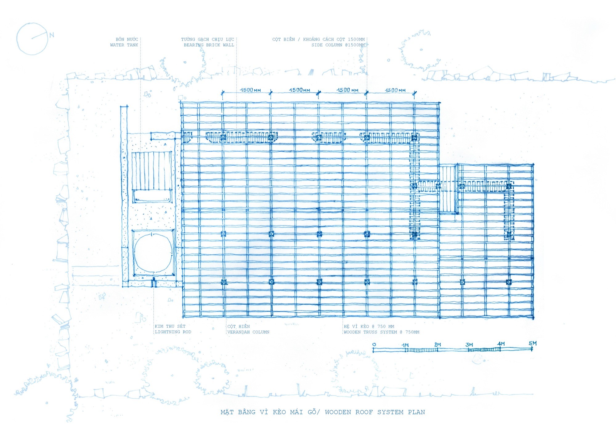
Hình khối được tổ chức từ nhu cầu tối giản và khả năng thi công trong điều kiện hạn chế. Một khối nhà nhỏ với mái dốc quen thuộc được lựa chọn như giải pháp hợp lý trước khí hậu mưa nhiều và địa hình dốc. Ngôn ngữ vật liệu giữ ở mức cơ bản, với gỗ, đất và ngói, không nhằm tạo hiệu ứng thị giác mà hướng đến sự bền vững và cảm giác gần gũi. Công trình vì thế hiện diện như một phần tiếp nối của bối cảnh, hơn là một đối tượng tách rời. Không gian bên trong phát triển theo phương ngang, tạo nên sự liên tục nhưng có kiểm soát. Các lớp lam gỗ đóng vai trò trung gian, vừa điều tiết ánh sáng vừa tạo độ sâu thị giác.

Ánh sáng tự nhiên được lọc qua các lớp này, phản chiếu lên bề mặt vật liệu thô, góp phần định hình một bầu không khí tĩnh và chậm, phù hợp với nhịp sống nghỉ dưỡng. Chiến lược tổ chức không gian thể hiện rõ qua sự phân định giữa mở và đóng. Mặt chính của công trình hướng về thung lũng, mở rộng tầm nhìn và đón gió. Ngược lại, phía tiếp cận từ đường được xử lý kín đáo hơn, nhằm giảm tác động của mưa, gió và bùn đất. Sự định hướng này cho phép ngôi nhà vừa khai thác tối đa giá trị của cảnh quan, vừa đảm bảo điều kiện vi khí hậu ổn định cho sinh hoạt.

Bình luận

(0)
Loading...
Danh mục
Loại dự án
Dự án khác tại