Nhà Vũng Tàu
Việt Nam, Bà Rịa - Vũng Tàu
Hoàn thành
2025

Giữa bối cảnh đô thị ven biển Vũng Tàu ngày càng bị nén chặt, công trình đặt ra một câu hỏi cơ bản về nhà ở đương đại trong điều kiện khí hậu nhiệt đới. Thay vì tiếp tục các mô hình đóng kín và phụ thuộc vào giải pháp cơ học, dự án tìm cách tái cấu trúc không gian sống thông qua thông gió tự nhiên, ánh sáng và các khoảng đệm khí hậu.

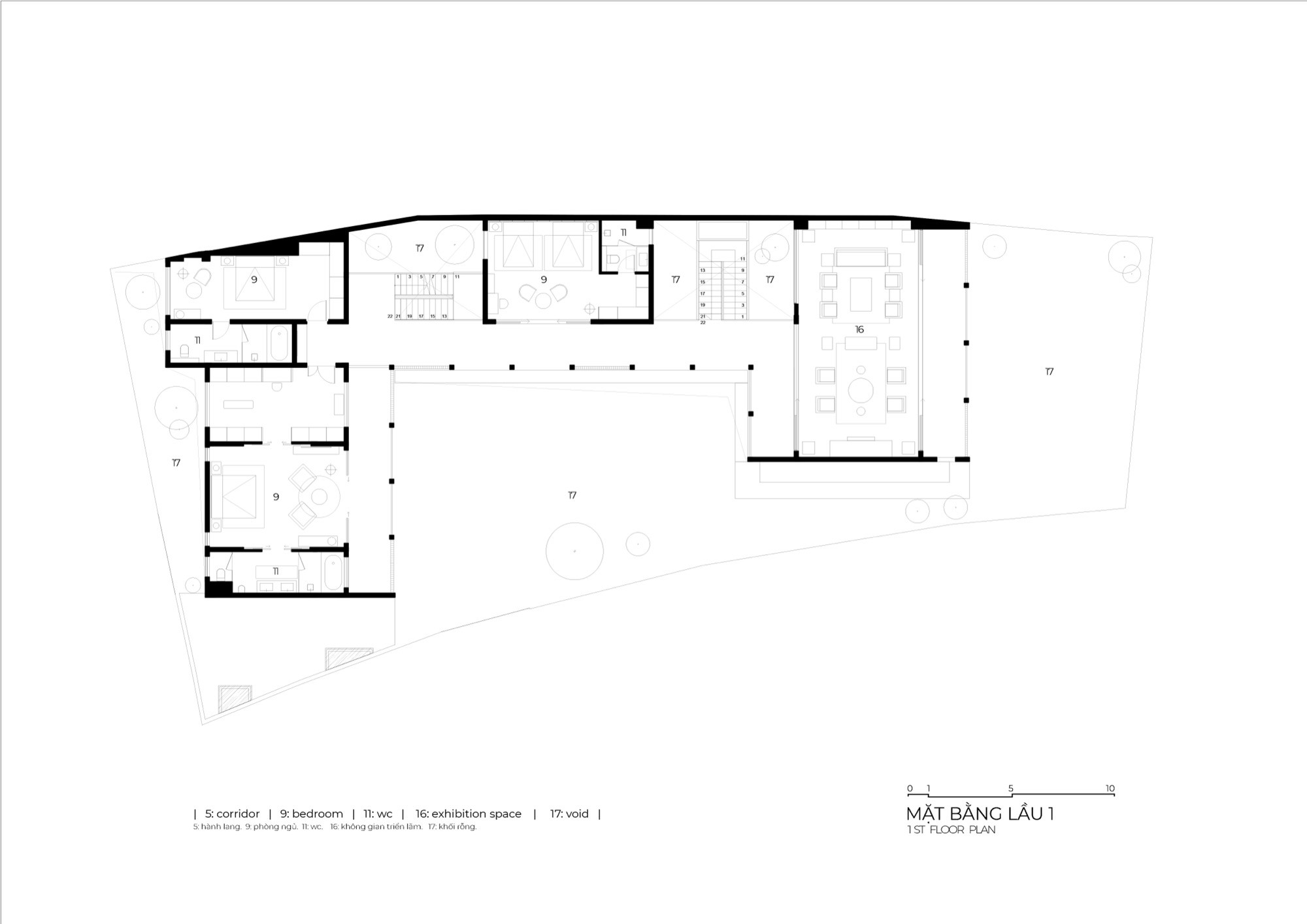
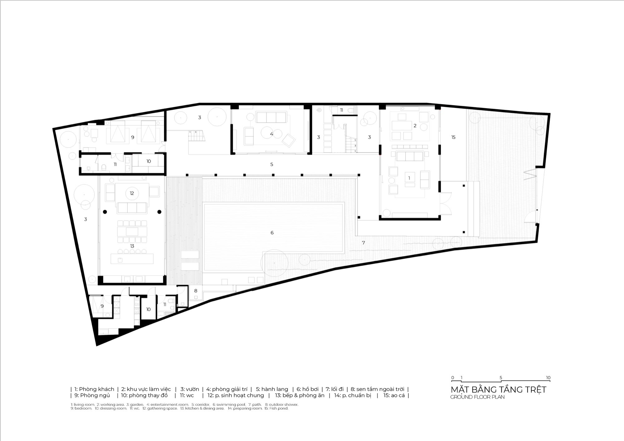
Ngôi nhà được thiết kế cho một gia đình ba thế hệ, với trọng tâm là hệ thống năm khoảng sân được tổ chức xuyên suốt công trình. Các khoảng sân này đóng vai trò như những không gian trung gian, giúp điều tiết vi khí hậu, tạo ánh sáng tự nhiên và duy trì sự thông thoáng cho toàn bộ ngôi nhà. Sân không còn là phần phụ của kiến trúc, mà trở thành một phần của đời sống hằng ngày.

Sân trung tâm là điểm kết nối chính, nơi các không gian sinh hoạt được tổ chức xoay quanh. Cách tổ chức này cho phép sự giao thoa tự nhiên giữa các thế hệ, đồng thời vẫn đảm bảo tính riêng tư cần thiết cho từng khu vực. Các không gian trong nhà được mở ra theo nhiều hướng khác nhau, tạo nên những lớp không gian linh hoạt và dễ thích ứng với sự thay đổi theo thời gian.

Hình thức kiến trúc được kiểm soát chặt chẽ, với cấu trúc và vật liệu được thể hiện trực tiếp. Các bề mặt thô mộc và chi tiết lộ diện giúp nhấn mạnh tính chân thực của công trình, đồng thời giảm thiểu các can thiệp mang tính trang trí. Trên nền tảng đó, những nguyên lý của nhà ở truyền thống được chắt lọc và chuyển hóa để phù hợp với lối sống đương đại.

Công trình tiếp cận kiến trúc như một hệ thống sống, nơi không gian, cấu trúc và khí hậu cùng vận hành để nâng cao chất lượng ở. Thay vì tìm kiếm sự khác biệt về hình thức, dự án hướng tới sự bền vững thông qua trải nghiệm sử dụng, khả năng thích ứng và sự gắn kết lâu dài của đời sống gia đình.

Bình luận

(0)
Loading...
Danh mục
Loại dự án
Nhóm thiết kế
Nguyễn Văn Thiên Nguyễn Sỹ Tuấn Trần Anh Huy Võ Thành Sơn Nguyễn Huỳnh Duyên Võ Lê Cường Mai Ngọc Minh Mai Đức Duy Kiên Nguyễn
Dự án khác tại
Hình ảnh